DeepWood research project launched

06.05.2020

Through active leadership and participation in research and development projects, we are part of and drivers of the positive development in timber construction. Together with the Bern University of Applied Sciences and Arts, the Lucerne University of Applied Sciences and Arts and the DeepWood implementation team, we continue to develop the BIM planning method.

DeepWood research project launched

The Building Information Modeling (BIM) planning method has become a a fixed component of marketing and reporting, especially when innovation is to be communicated, especially when innovation is to be communicated. In reality, BIM offers many challenges opportunities, but also many challenges. Because with BIM, a new era is dawning in the planning culture. in the planning culture. BIM is not a new tool, but a new method. method.

BIM in public buildings Buildings
The Digital Switzerland Action Plan 2018 calls for, that the planning of buildings in the public sector and federal and federal enterprises be carried out using digital collaboration methods from 2021. be carried out. Nevertheless, in reality, not many construction projects are yet consistently planned according to BIM. The collaboration of different planning teams and the resulting interface problems cost a lot of energy and effort. interface problems cost a lot of energy and effort today. In the future planners should work simultaneously and across companies on the same model. model simultaneously and across companies.

DeepWood
The DeepWood research project refers to the future further development of BIM maturity level 2 to 3 and takes up the challenge of how collaboration between several users can be realized simultaneously in a common model. can be realized. DeepWood uses the Catia platform for this purpose. It enables the development of real-time, cross-company and collaborative planning in the collaborative planning in timber construction.

Knowledge transfer into practice
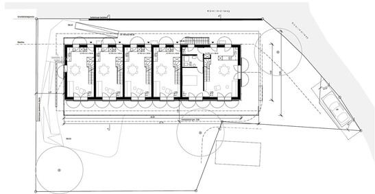
An important part of the research project is the exemplary application of the new of the new findings on a real construction project. As a so-called Living Lab is a new apartment building on Blüemlimattweg in Thun. At the moment, the wooden building with five residential units is currently being planned down to the last detail in the Catia platform. In summer, the excavators will drive up and start construction.

Planning in Catia

BWM15
Visualization and floor plan of the apartment building on Blüemlimattweg in Thun.

Cover image: © Sean Prior/123rf

Privacy notice
This website uses external components that can be used to collect data about your behavior. Read more about this in our privacy policy.