De nouveaux locaux scolaires pour Dotzigen

06.07.2020

Les travaux de démolition de l'ancienne aile des salles spéciales commencent aujourd'hui. Le 7 août, le premier coup de pioche sera donné pour la construction des nouvelles salles spécialisées en bois. La construction se fera avec beaucoup de bois d'épicéa et de hêtre provenant de Suisse.

De nouveaux locaux scolaires pour Dotzigen

Les salles de classe du Oberstufe Dotzigen dans le canton de Berne ont atteint leurs limites de capacité. Afin de pouvoir aux élèves des communes associées de Büetigen-Diessbach-Dotzigen de bénéficier à l'avenir des meilleures conditions pour l'enseignement. les électeurs ont accordé en 2019 un crédit de construction de 4,1 millions de fr. francs.

Travaux de construction commencent
Il faut tout d'abord éliminer les déchets toxiques des années 70 les substances nocives utilisées doivent être soigneusement éliminées. Ensuite, le bâtiment existant sera L'aile des locaux spéciaux sera démolie et remplacée par un bâtiment moderne en bois.

Façade de l'école de Dotzigen

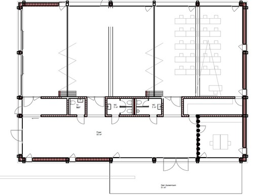
Leimer Tschanz Architekten AG de Bienne a conçu le bâtiment. ont planifié le corps de bâtiment de 25 mètres de long et 18 mètres de large. Ils ont défini un cage d'escalier en béton armé pour l'accès aux étages supérieurs et pour le renforcement de la structure. du bâtiment. Vous ne l'avez pas placée au centre du bâtiment, ce qui a permis de créer des chambres spacieuses. ainsi des pièces spacieuses. Au rez-de-chaussée, grâce à des cloisons pliantes qui peuvent être une salle de musique pouvant accueillir jusqu'à 100 personnes. personnes. Lorsque toutes les cloisons sont ouvertes, la salle mesure 25 mètres de long et 10 mètres de large. mètres de large.

Plan de l'école de Dotzigen

Construction en bois tendue
Les portées de 10 mètres de long et la charge prescrite charge utile de 3kN (300 kg par mètre carré) pour les bâtiments scolaires sont un défi. un défi pour la construction en bois. Avec les technologies et les produits de construction actuels mais ils sont faciles à résoudre.

Coupe de la poutre

Une poutre en bois lamellé-collé, fabriquée en bois suisse, couvre l'ensemble. en bois de hêtre couvre les pièces. Elle transmet les charges des étages supérieurs aux murs extérieurs. les murs extérieurs. La poutre a une dimension de 96x44cm. Grâce à une construction habile et le plafond suspendu, seuls 40 cm de la poutre sont encore visibles. La poutre est visible sur 40 cm.

Protection des données
Ce site web utilise des composants externes qui peuvent être utilisés pour collecter des données sur votre comportement. Pour en savoir plus, consultez nos informations sur la protection des données.